オープンハウスのお知らせ
Event + 2025.11.23
ALTS DESIGN OFFICE設計のモデルハウスが完成いたしました。
オープンハウスを開催いたします。

**************************************************************
イベント情報
開催期間|常時開催
開催時間|10;00~17:00(最終受付16:00)
開催場所|滋賀県大津市大平
**************************************************************
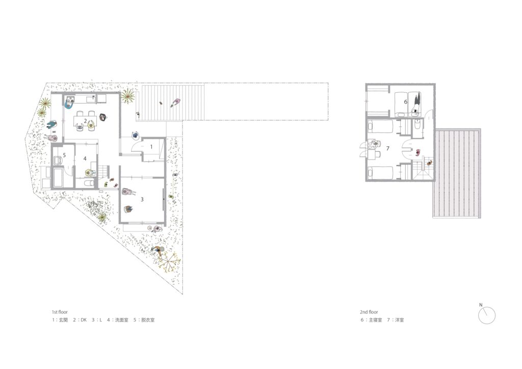
モデルハウス概要

土地面積|184.44㎡(55.7坪)
延床面積|103.09㎡(31.1坪)
間取り|2LDK (将来的に3LDKにリフォーム可能)
見学をご希望の方はこちらから▼
※ご希望日時をお知らせください。